小餐饮平面布局图图片(2)
2022-02-25 来源:动态图库网

上海展圆餐饮管理有限公司
250㎡左右茶餐厅cad施工图 3d模型 效果图-餐饮家具
免费领取餐厅设计必备平面布置方案合集来了
餐饮空间设计案例平面图 空间设计餐厅的案例分析 广州餐饮空间设计
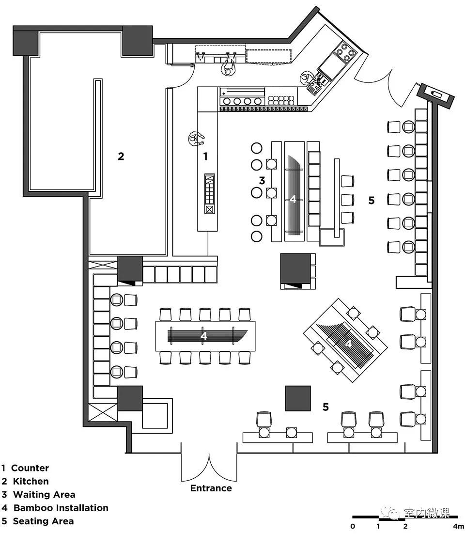
平面布局图
平面布局图
免费领取餐厅设计必备平面布置方案合集来了
平面布局图
平面布局图
餐饮空间布局
平面布局图
考研干货 | 室内快题设计餐饮空间平面布局要点
鑫晨装饰 装修资讯 餐饮空间设计 > 餐厅布局和设计指南创建一个伟大

餐饮布局的基本要求 饭店餐饮经营方式有哪些 餐厅布局的基本要求是