动态图库网
首页 > GIF动态图

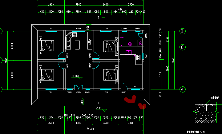
散水平面图(2)

2022-02-26 来源:动态图库网

散水:画散水时是不是不用把外包石材装饰柱的画上去?

散水:画散水时是不是不用把外包石材装饰柱的画上去?

是混凝土散水坡做法

是混凝土散水坡做法

[分享]研发中心平面布置资料下载

[分享]研发中心平面布置资料下载

图纸有散水,平面图说明里写室外散水暗沟做法见哪个图集,这个暗沟要算

图纸有散水,平面图说明里写室外散水暗沟做法见哪个图集,这个暗沟要算

散水节点详图

散水节点详图

请画出一种散水的结构层次图

请画出一种散水的结构层次图

散水算面积?

散水算面积?

如图散水和坡道怎么画

如图散水和坡道怎么画

外墙外侧个别地方有干挂石材,我画散水 台阶 是不是需要扣除干挂石材

外墙外侧个别地方有干挂石材,我画散水 台阶 是不是需要扣除干挂石材

散水

散水

老师,你好 这就是我问你的散水

老师,你好 这就是我问你的散水

好像不是散水哦

好像不是散水哦

散水

散水

《天正建筑》这种情况的

《天正建筑》这种情况的"散水"怎么处理?(一) 图片