15zj001图集
2022-02-26 来源:动态图库网

求15zj001图集一份
15zj201平屋面图集资料pdf42页
15zj201图集免费
15zj203种植屋面ocr
查楼地面陶瓷地砖15zj001_f1地201_28页图集砖尺寸及做法 1600x1170
15zj001图集 1066x786 - 1092981751,4280389112 工程施工中图集15zj
11zj103蒸压加气混凝土砌块墙体建筑构造图集
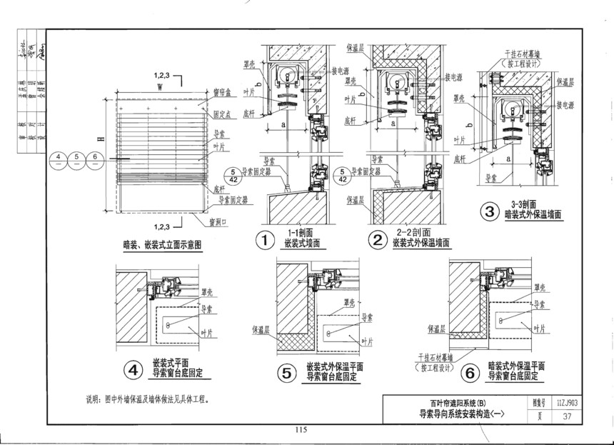
图集 建筑图集 海南-15zj图集 11zj903建筑外遮阳 上一&
中南标05zj001图集内墙5涂23什么意思
15zj201 平屋面高清图集下载
15zj001 建筑构造用料做法图集.pdf
15zj001图集文库
15zj203图集p19植屋2-1怎么做
15zj001建筑图集顶9
15zj001图集微盘
图集05zj001第75页顶棚3,4的做法?