11zj411栏杆图集(2)
2022-02-26 来源:动态图库网

图集 建筑图集 11zj411阳台,外廊栏杆 上一页&
图集 建筑图集 11zj411阳台,外廊栏杆 上一页&
中南标栏杆图集下载-11zj411阳台外廊栏杆中南标下载
图集 建筑图集 11zj411阳台,外廊栏杆 上一页&
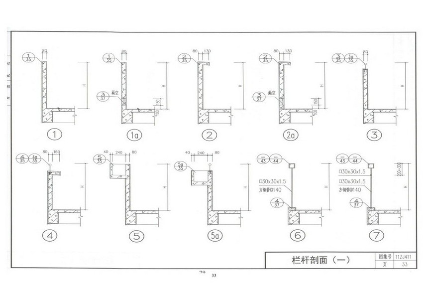
11zj411-2011中南标图集阳台,外廓栏杆(一)
11zj411-2011中南标图集阳台,外廓栏杆(一)
图集 建筑图集 11zj411阳台,外廊栏杆 上一页&
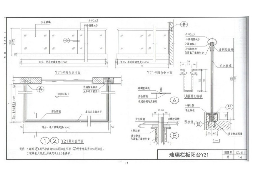
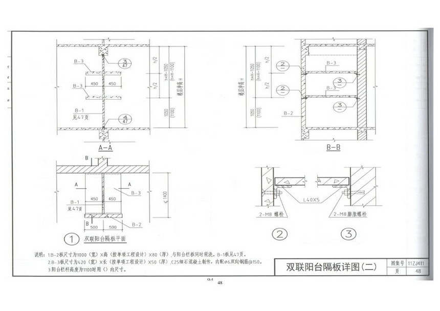
11zj411 阳台,外廊栏杆【中南地区工程建设标准设计建筑图集】.
11zj411阳台外廊栏杆
98zj411 阳台,外廊栏杆
11zj411阳台外廊栏杆
网站首页 海量文档 建筑/施工 建筑图集 11zj411阳台,外廊栏杆.
图集 建筑图集 11zj411阳台,外廊栏杆 上一页&
图集 建筑图集 11zj411阳台,外廊栏杆 上一页&