重庆来福士广场户型
2022-03-03 来源:动态图库网

重庆来福士住宅l16楼层4号房户型图
来福士广场.小户型即将加推.江景豪宅.
新房 重庆来福士广场 户型图
重庆来福士住宅l39楼层1号房户型图
重庆来福士广场
重庆来福士广场对面的网红民宿月河对影
来福士广场--重庆未来新地标 两江河畔的豪宅朝天门杨帆
重庆来福士广场商铺出售,重庆新地标,朝天门来福士,新
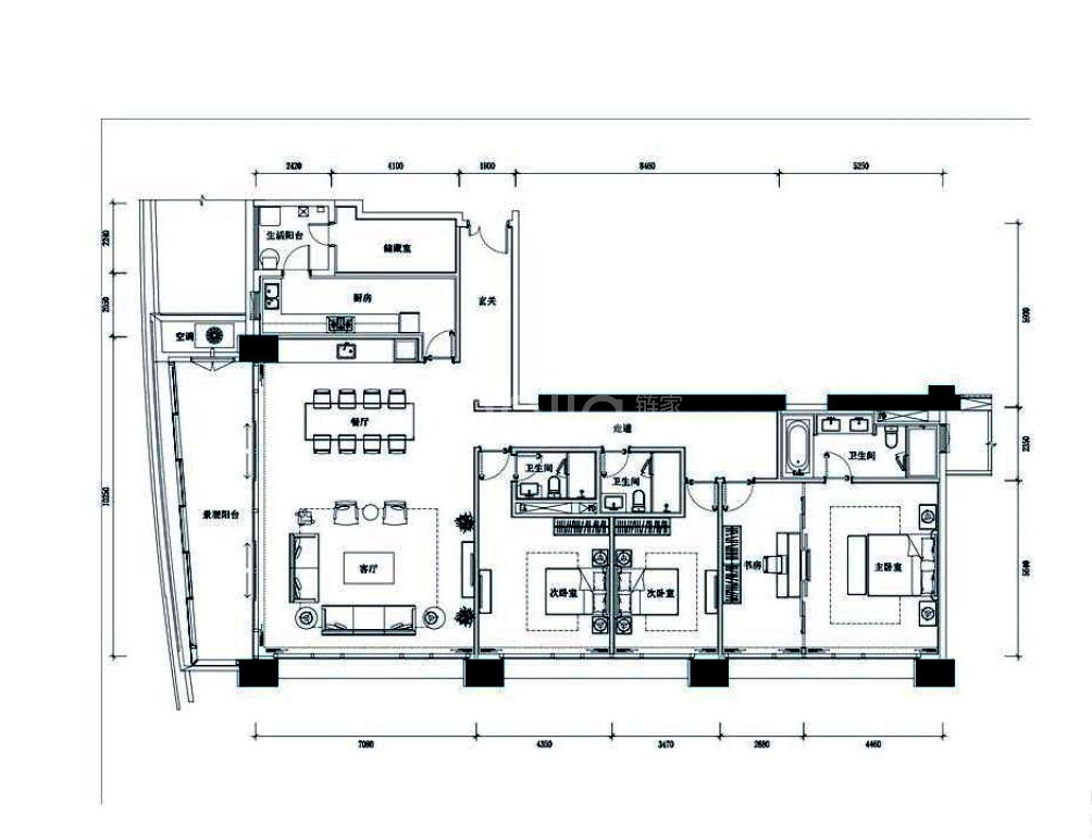
渝中区朝天门 重庆来福士广场 4室2厅3卫 275平米
重庆来福士广场户型图(链家网)
新房 重庆来福士广场 户型图
来福士广场重庆顶.级豪宅.
重庆地标-来福士广场,楼王写字楼
重庆来福士广场 小户型即将加推 全程包接送五星看两江交汇
新房 重庆来福士广场 户型图
重庆来福士广场室内图