窗套节点(2)
2022-03-09 来源:动态图库网

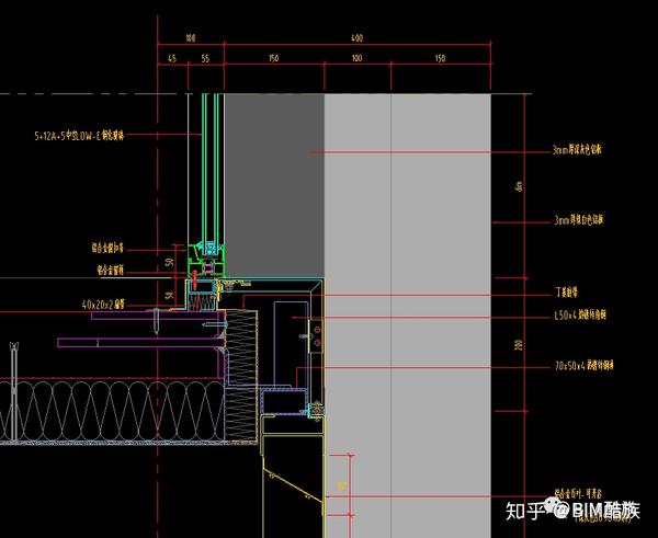
dwgcad窗套门套施工图节点大样剖面图
族迹|一种铝板幕墙外窗套族
窗套节点图-张歌的设计师家园-478481,52,308866,54
原创cad窗套水平剖面图节点大样图施工图窗套版权可商用
室内装修节点窗套图案图cad素材下载_其他图cad2012门套安装填充怎么
窗套的制作方法
一种窗套板的安装节点的制作方法
顶层窗窗套详图
纱窗节点图图纸下载专题说明
某地区的窗套节点图cad图纸
木饰面消防栓暗门构造节点 第四章 垭口及窗套构造 1.
关于窗套的问题
隐框玻璃幕墙开启窗横剖节点图图片
一种窗下框用窗套板及窗套板的安装节点的制作方法