10x12米小别墅设计图
2022-03-02 来源:动态图库网

10x12米农村二层别墅,接地气的经典户型,20万就能建成
农村10x12米三层自建房设计图给你备好了,是土豪的点进来
10x12米农村别墅,同一造型,不同布局,哪个布局更适合
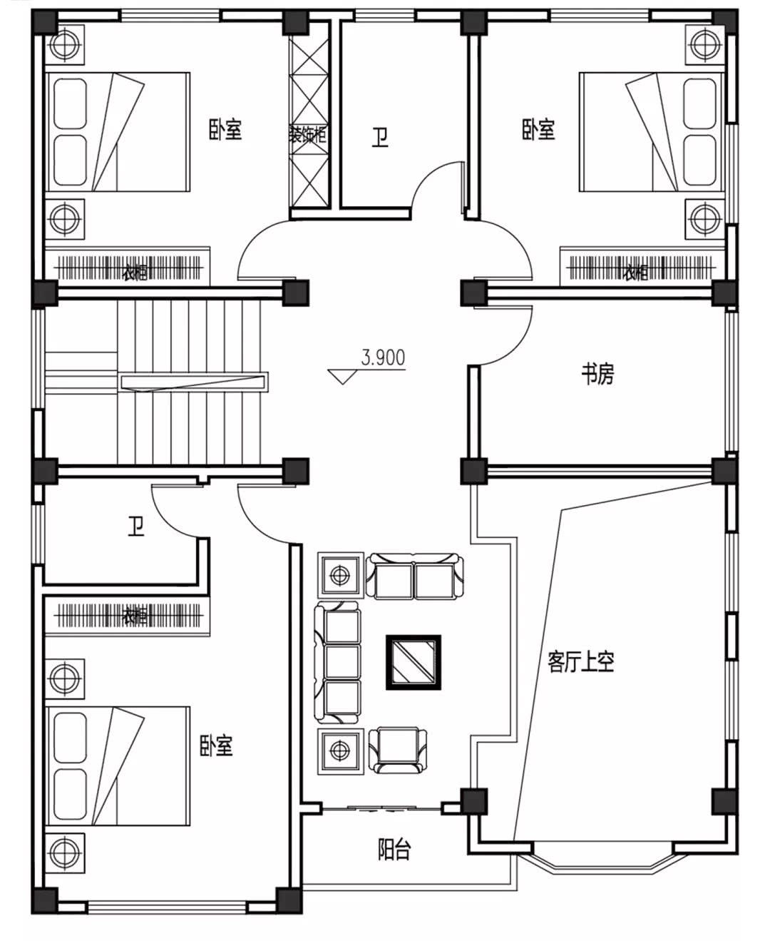
12x10米三层别墅设计图7卧露台书房棋牌室
10x12米只要30万就能建成的农村别墅
10x12米农村别墅,同一造型,不同布局,哪个布局更适合
10x10米三层平顶别墅,外观方正立面时尚,新农村超实用
村小宅现代风格二层10x12别墅设计图纸2107050新农村自建房设计图
农村10x12米三层自建房设计图给你备好了,是土豪的点进来
10x12米农村自建15万二层别墅设计图,cad全套
农村10x12米三层自建房设计图给你备好了,是土豪的点进来
10x12米三层农村别墅,带车库设计太美了
农村10x12米三层自建房设计图给你备好了,是土豪的点进来
10x12米经典乡村别墅(全图 预算 视频展示)
别墅编号:ms1702138 占地尺寸:10x10米 占地面积:101.
10x12米农村别墅,同一造型,不同布局,哪个布局更适合