10x12三层自建房设计图
2022-03-02 来源:动态图库网

10x12米自建套房图纸,包括一层到三层,你想要的都有
10x12米农村别墅,同一造型,不同布局,哪个布局更适合你?
农村10x12米三层自建房设计图给你备好了,是土豪的点进来
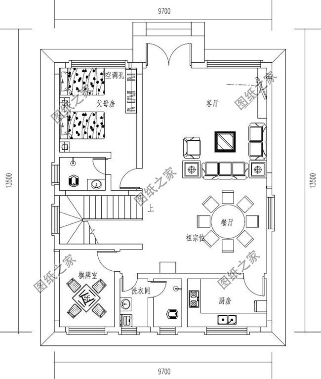
农村10x12米三层自建房设计图给你备好了,是土豪的点进来
农村平屋顶三层自建房设计图,尽享农村幸福生活,非常适合农村建造
农村10x12米三层自建房设计图给你备好了,是土豪的点进来
10x12米三层别墅,兼具美观与舒适,十分符合大众的审美
村小宅欧式风格三层10x12别墅设计图纸2103295新农村自建房设计图
10x12,12x10米两种尺寸的120平农村三层别墅,造价只要
10x12米农村经典三层别墅,50万拎包入住,大飘窗让人一看就喜欢
农村10x12米三层自建房设计图给你备好了,是土豪的点进来
农村10x12米三层自建房设计图给你备好了,是土豪的点进来
农村10x12米三层自建房设计图给你备好了,是土豪的点进来
农村三层自建房设计图,实拍图效果图对比,适合一般的农村家庭
10x12米三层农村别墅,带车库设计太美了
10x12米农村二层别墅,接地气的经典户型,20万就能建成